平衡閥作用
平衡閥是在水力情況下,起到動態、靜態平衡調節的閥門。如靜態平衡閥,[動態平衡閥]。 靜態平衡閥亦稱平衡閥、手動平衡閥、數字鎖定平衡閥、雙位調節閥等,它是通過改變閥芯與閥座的間隙(開度),來改變流經閥門的流動阻力以達到調節流量的目的,其作用對象是系統的阻力,能夠將新的水量按照設計計算的比例平衡分配,各支路同時按比例增減,仍然滿足當前氣候需要下的部份負荷的流量需求,起到熱平衡的作用。 動態平衡閥分為動態流量平衡閥,動態壓差平衡閥,自力式自身壓差控制閥等。

平衡閥是在水力情況下,起到動態、靜態平衡調節的閥門。如靜態平衡閥,[動態平衡閥]。 靜態平衡閥亦稱平衡閥、手動平衡閥、數字鎖定平衡閥、雙位調節閥等,它是通過改變閥芯與閥座的間隙(開度),來改變流經閥門的流動阻力以達到調節流量的目的,其作用對象是系統的阻力,能夠將新的水量按照設計計算的比例平衡分配,各支路同時按比例增減,仍然滿足當前氣候需要下的部份負荷的流量需求,起到熱平衡的作用。 動態平衡閥分為動態流量平衡閥,動態壓差平衡閥,自力式自身壓差控制閥等。

用處
ZYC型自力式壓差控制閥,是一種利用介質自身的壓力變更進行自我把持而保持流經該被控系統介質壓差不變的節能產品。實用于供熱方法采用雙管系統的壓差把持,保證系統的壓差基礎不變,減低噪音,平衡阻力,打消熱網的水力失調。
工作原理
現以安裝在回水管道上的ZYC型自力式壓差把持閥為例闡明工作原理。當供水壓力p1增大或減小時,信號由連接收傳如膜片上腔,帶動閥芯下移,使閥座的流通面積減小或增大。P2-P3也增大或減小,直到P1-P2保持原值恒定。當回水壓力P3增大或減小的瞬間同閥座流向出口的流速下降或升高,膜片下壓力P2也在這個瞬間增高或下降,帶動閥芯上移或下移,知道膜片的受力重新平衡,P2恢復原值,P1-P2保護原值恒定,從而保證了被控系統的供回水間壓差基礎不變。
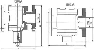
重要外型尺寸
|
DN(mm)
|
連接方法
|
L(mm)
|
H
|
H1
|
流量m3/h
|
實用介質
|
介質溫度
|
|
15
|
螺紋
|
110
|
72
|
98
|
0.2-1
|
水
|
0~80℃s
|
|
20
|
110
|
72
|
98
|
0.3-1.5
|
|||
|
25
|
115
|
82
|
102
|
0.5-2
|
|||
|
32
|
法蘭
|
160
|
91
|
94
|
1-4
|
||
|
40
|
200
|
147
|
112
|
1.5-6
|
|||
|
50
|
215
|
120
|
112
|
2-8
|
|||
|
65
|
220
|
125
|
120
|
3-12
|
|||
|
80
|
275
|
188
|
133
|
5-20
|
|||
|
100
|
290
|
208
|
160
|
10-52
|
|||
|
125
|
310
|
226
|
175
|
15-45
|
|||
|
150
|
350
|
258
|
195
|
30-80
|
|||
|
200
|
430
|
301
|
230
|
40-180
|
|||
|
250
|
520
|
367
|
265
|
100-300
|
|||
|
300
|
635
|
430
|
300
|
150-500
|
|||
|
350
|
670
|
504
|
340
|
200-700
|

ZYC型自力式壓差把持閥的外形尺寸和連接尺寸,請接洽我們索取。